Wait...

Apartment building

complete year: 2011

Main explanation: the building facade made of wood, stone. two parallel iron bars starting from the roof edge looked as if all floors are by them. the edge of the lobby front drive way the two (bars) separate and cover the drive way walls like a web.

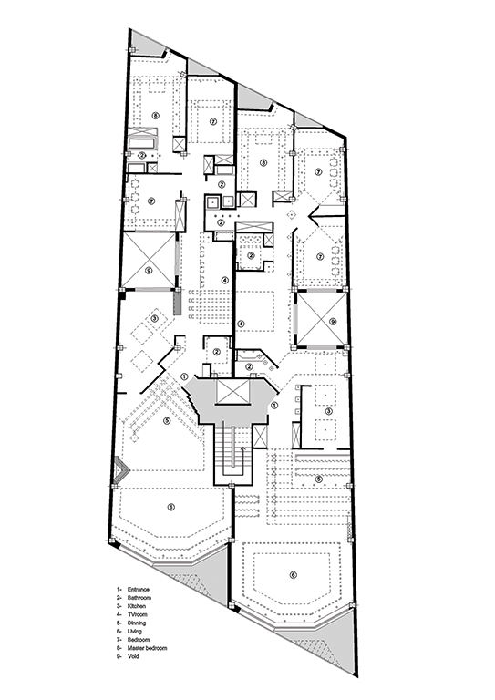
Photo No.4: as shown in the plan, the balconies are shaped in a way that make the inside space the most suitable to use sharp from the exterior space.

Photo No.10: the rectangle shaped openings built by Plexiglas in the stone wall serve the purpose of array lighting.

photo No.13: the steps like waterfalls lead to a cubic basin.

for better exprience turn on your speacker