Wait...

Residential 2

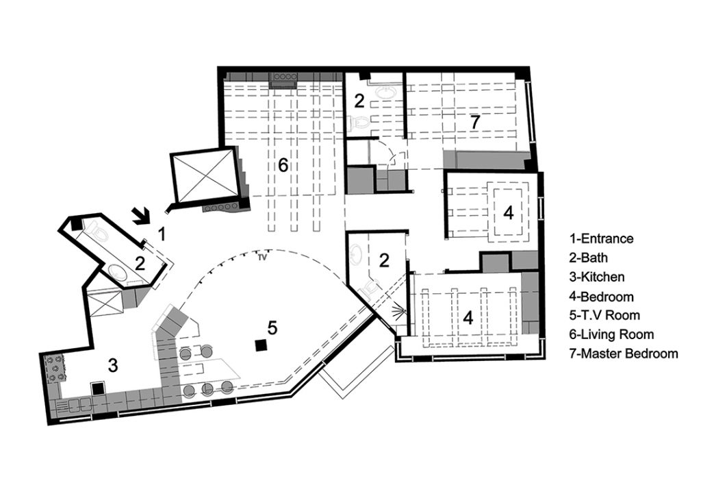
Main explanation: in somehow minimal space wooden bars are used to separate spaces and serve as a section of the entertainment center. walls are plain or minimally decorated.

Photo No. 4: in somehow minimal space wooden bars are used to separate spaces and serve as a section of the entertainment center. walls are plain or minimally decorated.

Photo No. 7: the fireplace is placed on a reflect glass wall which serves as mirror at day time (absence of light) and transparent glass at night time (presence of light), a section of this wall is a beehive shaped show case

for better exprience turn on your speacker